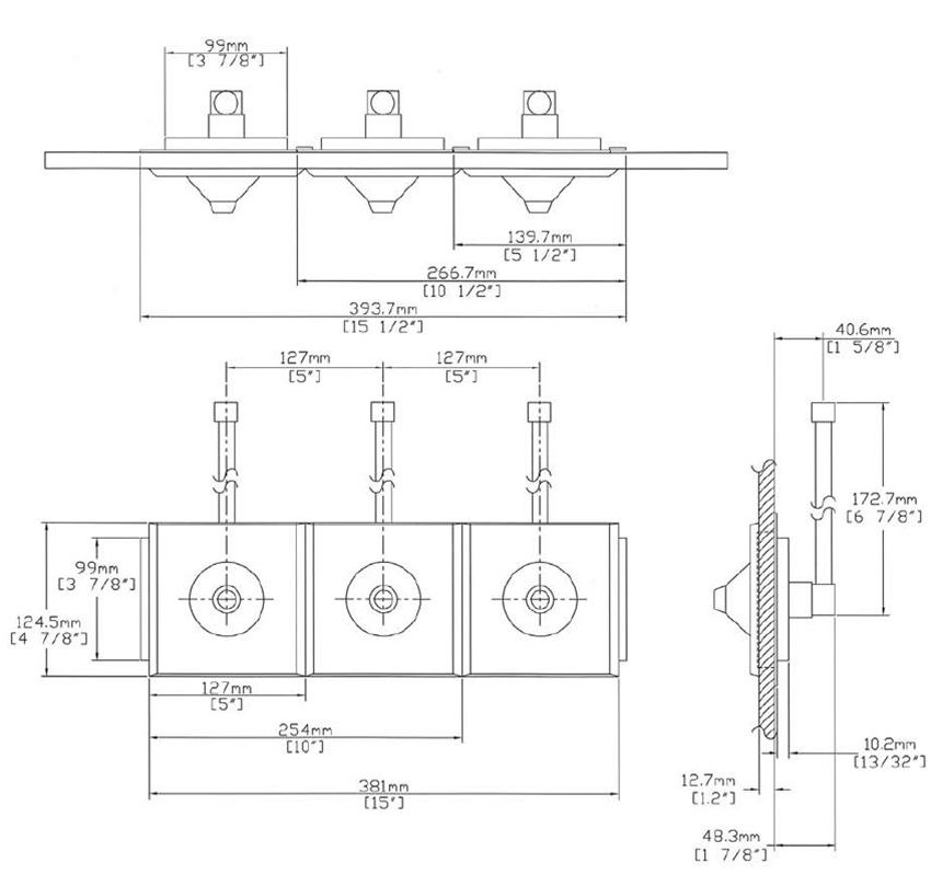
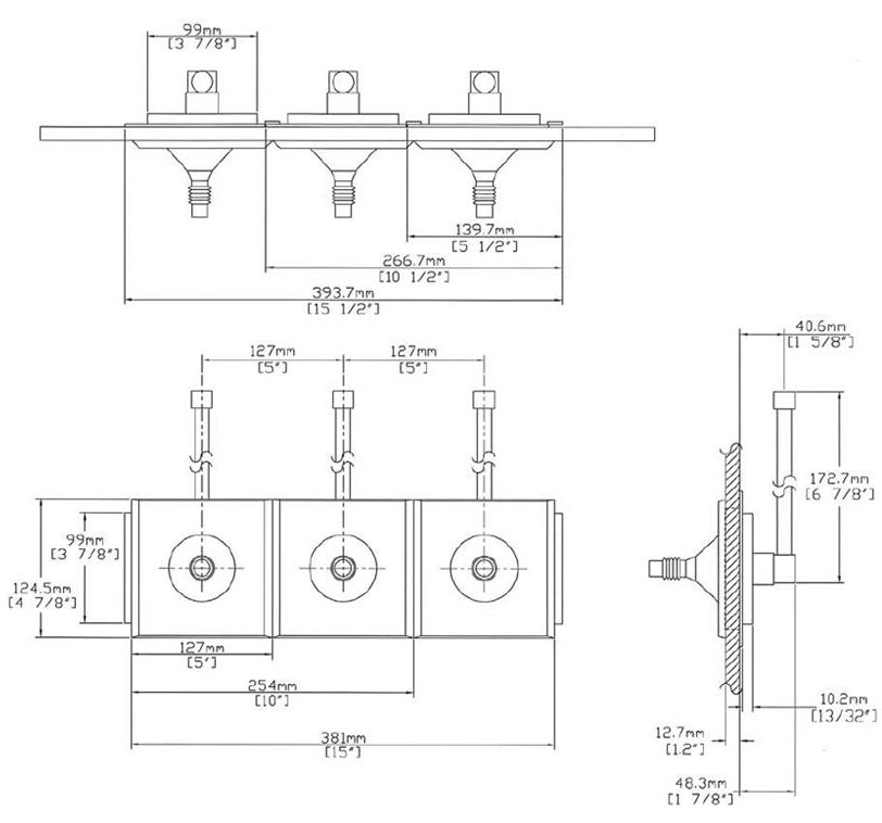
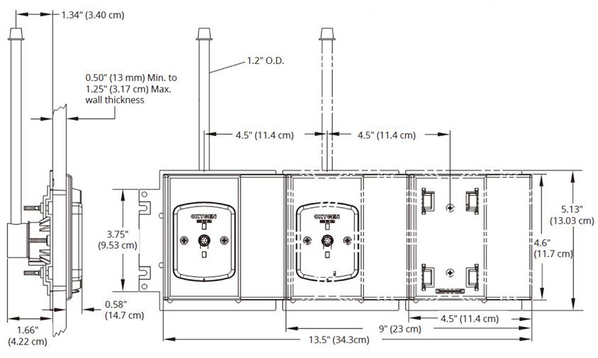
Gas Outlet
As an outlet for the final supply of medical gas to the patient, each outlet is incompatible by gas type (O2, N2, N2O, AIR, VAC, EVAC, CO2), and it is embedded in the wall, console, wall care unit, ceiling, etc. The connecting part is made of the Quick Connect, DISS method. It is designed to be compatible with all products required by NFPA, while saving space with its compact configuration.
o
Outlets are installed to supply
medical gas in all places where medical device is used including OR, ICU, RICU,
CCU, and Ward. Medical gas used include Oxygen, Air, Nitro Oxide, and Vacuum.
o
Designed and manufactured
according to NFPA regulations and complying with UL and CSA standards.
o
Color coded for safety and
accident prevention coupling device
o
Highly durable with no leakage
of gas even when used for a long period of time. In particular, when connected
with a secondary device, the outlet secures an unmatched stability and a high
flow rate compared to other brands’ products.
o
The diameter is large and the
insertion guide length is long.
o
Quick connection type that can
be conveniently used single-handedly.
o
Wash and test for oxygen use.
1. Oxequip

2. Connect 2 (Ohmeda Type)
3. DISS Type
4. Pin-Index Type
5. koike-type
